Kontorlejemål i karakterfuldt, moderniseret pakhus ved Odense Havn
Inspirerende arbejdsplads med sjæl og karakter
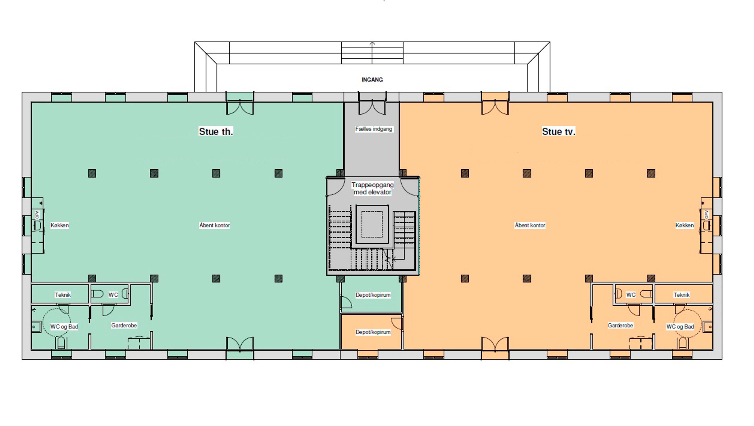
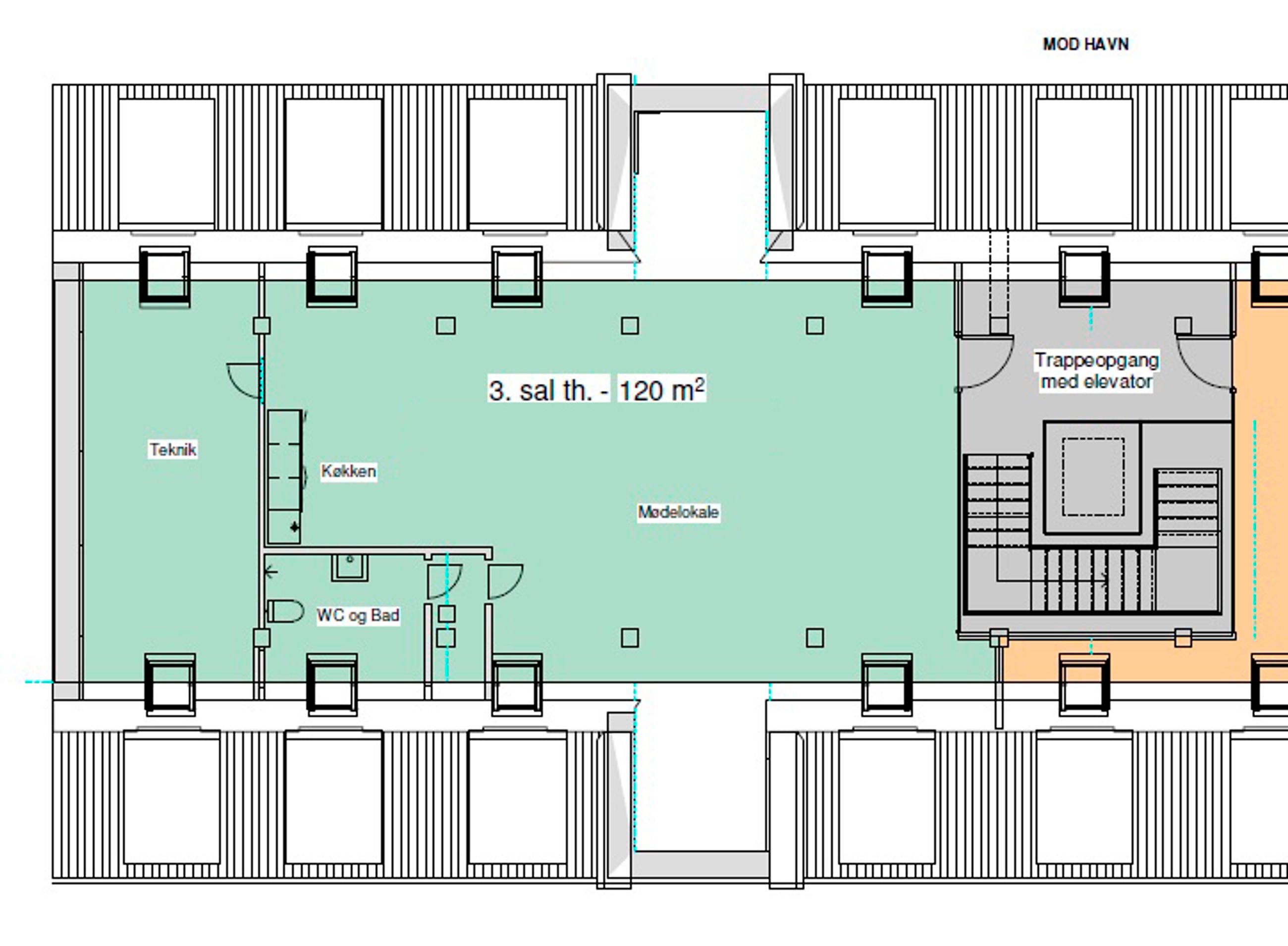
Lejemålet på Sverigesgade 6 tilbyder kontorrammer, der skiller sig ud fra mængden. Allerede i tagetagen opleves den særlige kombination af moderne komfort og bygningens originale pakhuskarakter med synlige træspær, generøs loftshøjde og et unikt lysindfald. Her får virksomheden et inspirerende miljø, der både kan rumme møder, samarbejde og kreative processer — alt sammen i en atmosfære, der er sjældent set i Odense C.
Lejemålet på Sverigesgade 6 tilbyder moderne, fleksible kontorarealer indrettet i et gennemrenoveret pakhusmiljø. Her kombineres lys, luft og funktionelle arbejdsstationer med synlige bjælker og gedigne materialer, som giver rummet kant og karakter.
Lokalerne er åbne og indbydende, og de store vinduespartier bidrager til et lyst og produktivt arbejdsmiljø.
De indre rammer er skabt til effektiv og behagelig arbejdsdag.
Kontorafsnittene er opdelt med elegante glasvægge, der sikrer både transparens og lydmæssig afskærmning. Kombinationen af moderne elementer og de originale trækonstruktioner giver et unikt og professionelt udtryk.
Beliggenhed
Ejendommen ligger i første række til Odense Havn i et dynamisk område i udvikling.
Beliggenheden giver nærhed til både centrum, let adgang til indfaldsveje og gode forbindelser til offentlig transport. Området er kendetegnet ved attraktive erhvervsadresser, rekreative muligheder og et voksende miljø af virksomheder.
Muligheder
Lejemålet rummer mange indretningsmuligheder og kan tilpasses virksomheder med behov for både åbne miljøer, møderum og afdelingsopdeling.
Det gennemførte renoveringsniveau, den markante arkitektur og de moderne faciliteter gør ejendommen til et stærkt match for virksomheder, der vil signalere kvalitet og identitet.
Et lejemål med sjæl, funktionalitet og en beliggenhed, der styrker virksomhedens profil.
Nøgletal
Økonomi
.png/md)
Bestil Prospekt
Hent materiale på denne ejendom


































